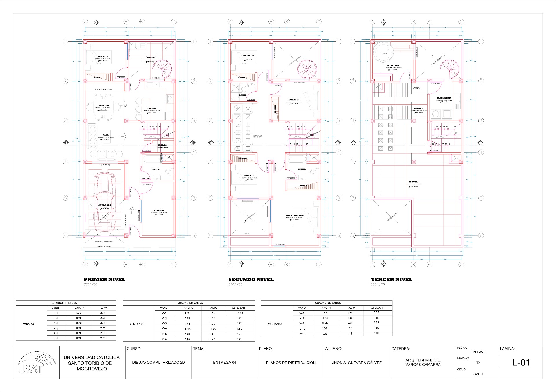
PROYECTO: VIVIENDA MULTIFAMILIAR
En esta sección presento mi entrega final del curso de Dibujo Computarizado 2D, la cual consiste en los planos técnicos de un proyecto de vivienda. Este trabajo refleja los conocimientos adquiridos en el manejo de herramientas de diseño asistido por computadora, así como mi habilidad para desarrollar documentación gráfica precisa y profesional.






